Sommerhus med sans for detaljerne
Flot Trend sommerhus opført i Sønderjylland med 3 dobbeltværelser, stort køkken/alrum, stue og to badeværelser – det ene med badekar.
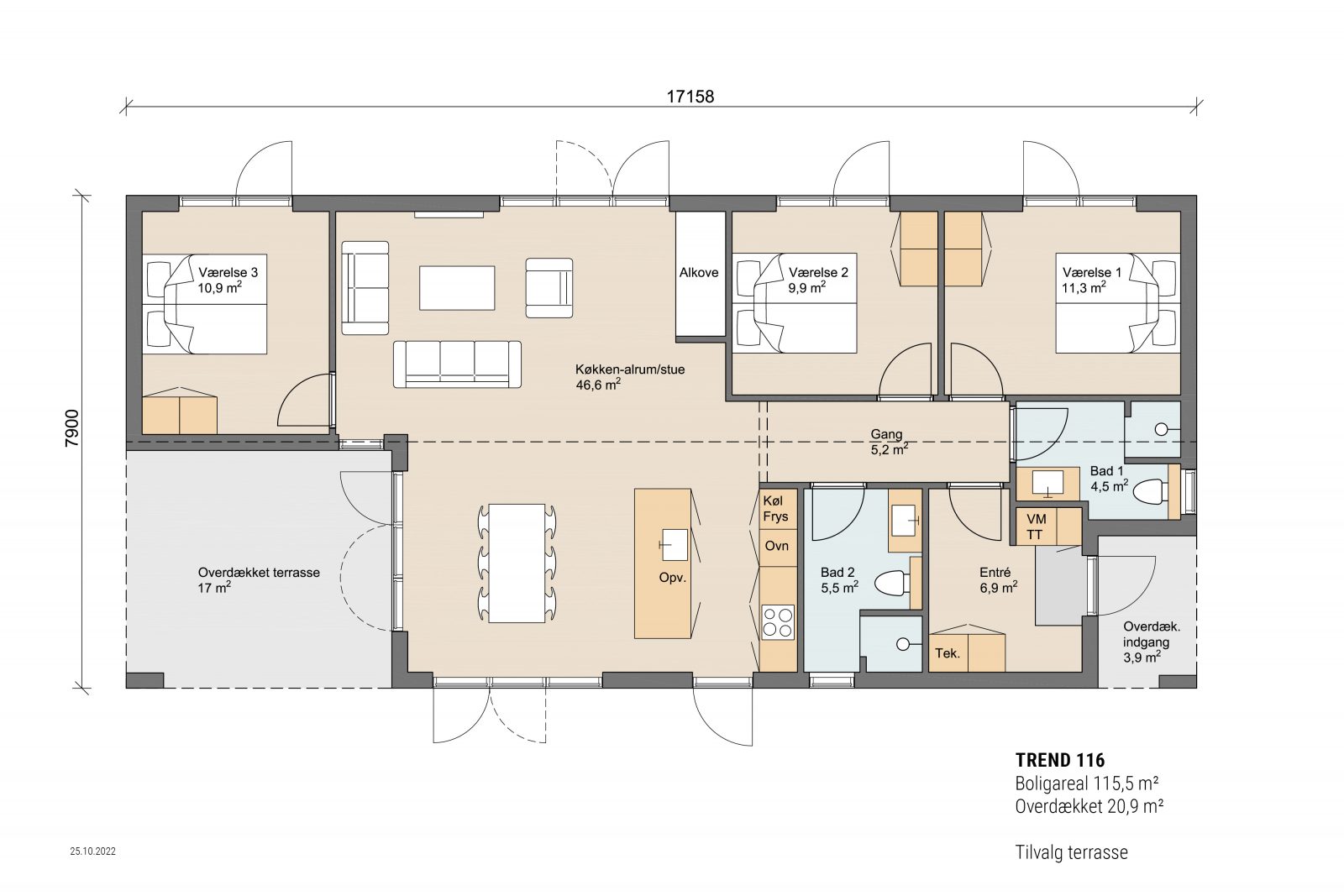
Det smukke sommerhus er baseret på Trend 115. En funktionel model med tre værelser fordelt i to værelsesafdelinger. Ejeren af sommerhuset har en sans for detaljen, hvilket tydeligt ses i den flotte indretning.
Detaljer og tilvalg
Sommerhuset har store flotte vinduespartier, som gør det muligt at nyde den smukke beliggenhed tæt på vandet fra de fleste steder i huset – i forbindelse med den overdækkede terrasse er der isat et vindue, så man også kan se vandet fra terrassen.
Det hvide køkken fra Svane Køkkenet har en elegant integreret emhætte og en flot bordplade i trælaminat – begge dele giver køkkenet et smukt udtryk som spiller flot sammen med den farvede bagvæg, som er en tone mørkere end husets ellers hvide vægge.
Bygherre har tilvalgt hvide trælofter i alle rum og hvide trævægge på værelserne. En løsning der får huset til at emme ekstra af sommerhus.
En stærk og stilren facade
Sommerhusets enkle tagkonstruktion er lavet med 30 graders taghældning, listedækning og sort tagpap.
Facadebeklædningen er fra Superwood, bygherre har opgradet til lodret beklædning istedet for vandret, som er standard på Trend i sort eller zink transparent.
Med Superwood får du en gennemimprægneret facade, hvor træet er beskyttet helt ind i kernen mod råd og svamp uden brug af tungmetaller og opløsningsmidler. En bæredygtig træbeklædning som mangedobler holdbarheden og giver nemmere vedligeholdelse.
Fakta om huset
Sommerhuset har taget udgangspunkt i Trend 116.
- 115 m²
- Tre værelser - fordelt i to afdelinger
- To badeværelser
- TV-stue med brændeovn
- Køkken/alrum
- Entré/gang
- Overdækket terrasse
Ejer har fortaget tilvalg som f.eks. brændeovn, hvidmalede trælofter og vægge m.m.
P. nr. 10705
Se flere billeder af sommerhuset
Følg @skanluxbyggefirma
Følg med når vi uploader billeder af vores kunders skønne sommerhuse på Instagram.
























