Når du bygger sommerhus med os, kan du vælge den serie, du bedst kan lide og matche den med den plantegning, du vil. Det giver dig friheden til at vælge den løsning, der passer perfekt til dig - imens du er sikret at få det bedste fra os.
Læs mere om mix & match konceptet og se, hvad du skal tage stilling til her.
1. Vores 3 sommerhus serier - kort fortalt
TREND, en stilren og moderne serie med Superwood facadebeklædning i sort eller zink transparent, 30 graders taghældning, tagpap og arkitekttagrender. Indenfor er der imponerende kipløsninger, store vinduespartier, et smukt naturligt lysindfald og et åbent køkken/alrum.
TREND BASIC, en moderne, klassisk og charmerende serie med sort facadebeklædning, 25 graders taghældning, tagsten og arkitekttagrender. Indenfor får du flotte kipløsninger, lofter og vægge i ludbehandlet profilbrædder, store vinduespartier, et smukt naturligt lysindfald og et åbent køkken/alrum.
CLASSIC, en klassisk, hyggelig og traditionsrig sommerhusserie med sort klinkbeklædning, 30 graders taghældning, flotte udhæng, tagsten og ståltagrender. Indenfor er der ludbehandlede lofter og vægge, smukke kipløsninger, store vinduespartier, et smukt lysindfald og et central placeret køkken/alrum.
Uanset hvilken serie du vælger, passer alle vores plantegninger dertil. Det er da nemt.
OBS. Vores poolhuse er ikke inkluderet i mix & match.
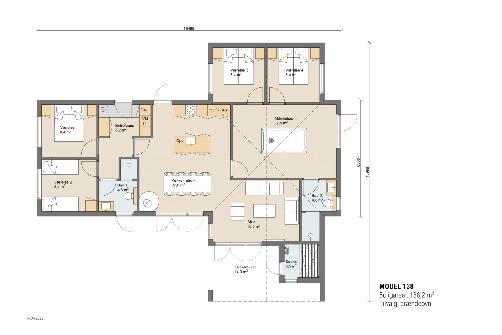
2. Vælg mellem vores fleksible planløsninger
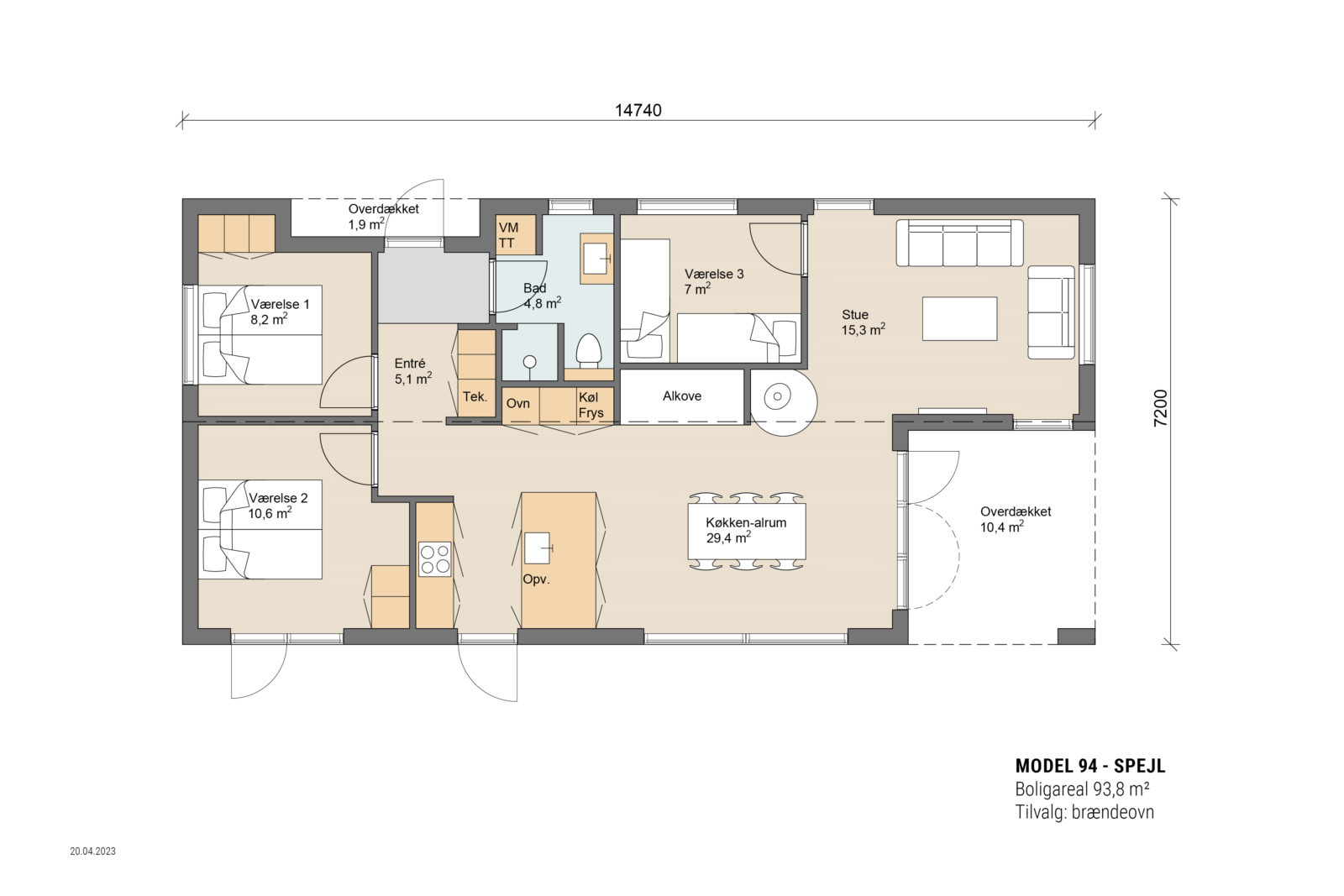
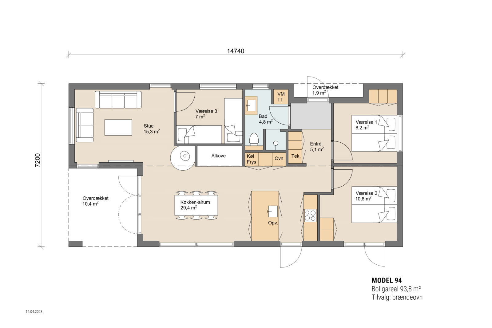
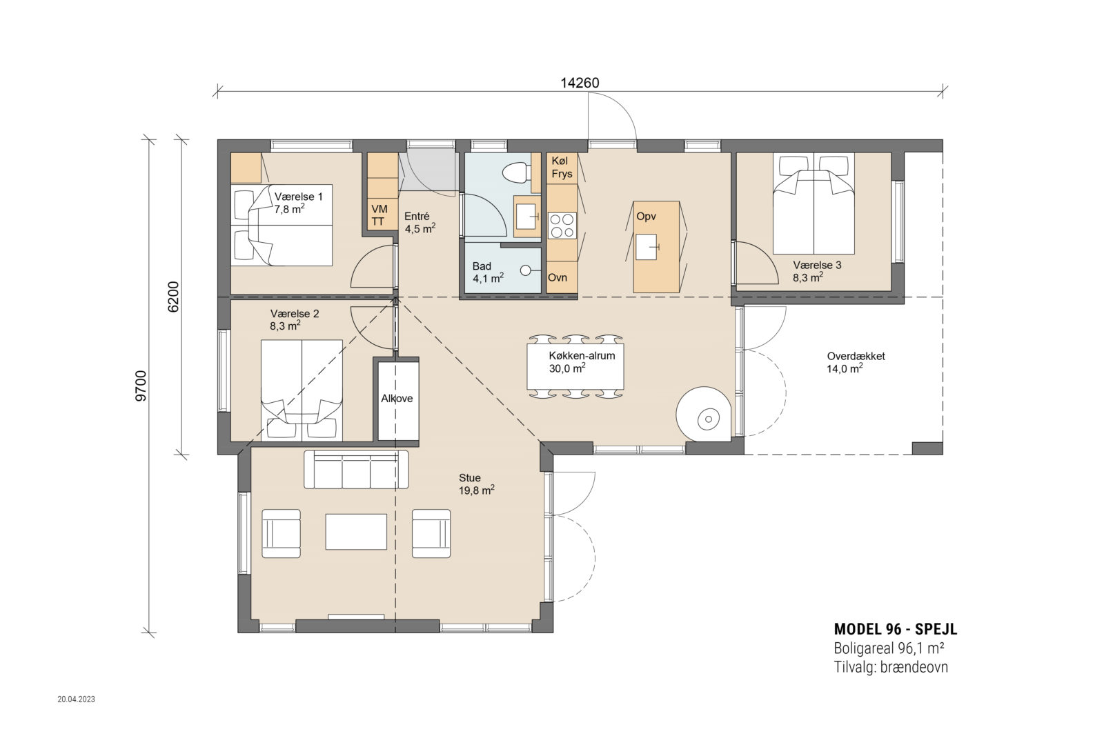
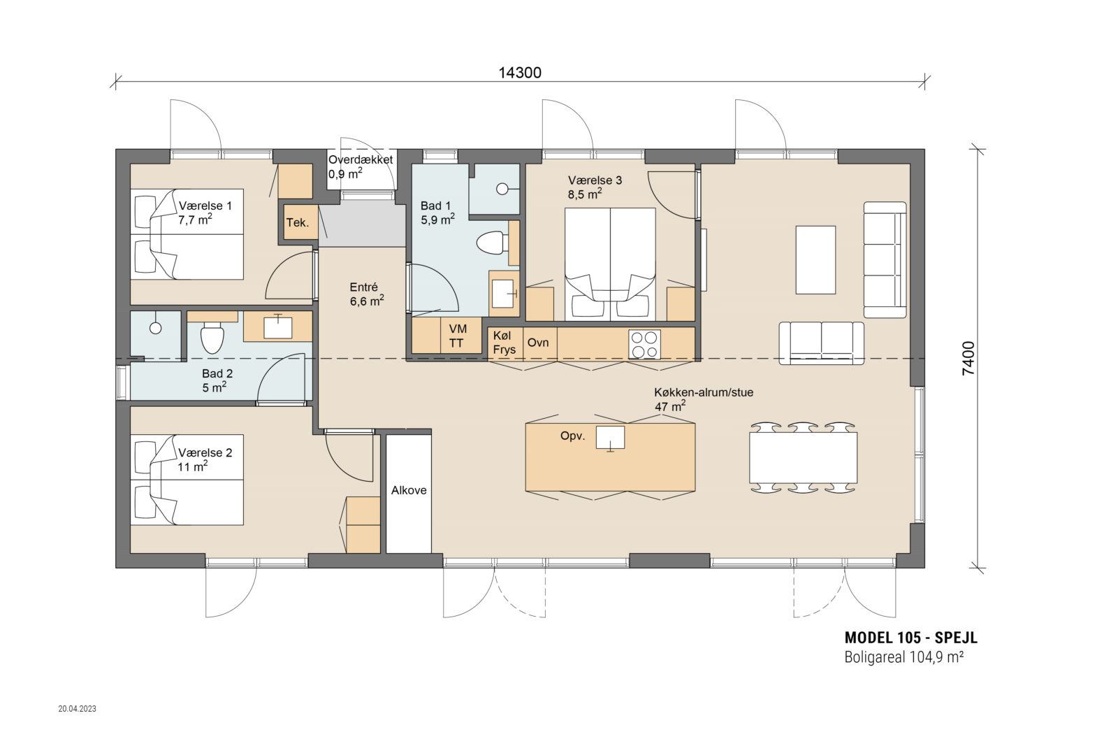
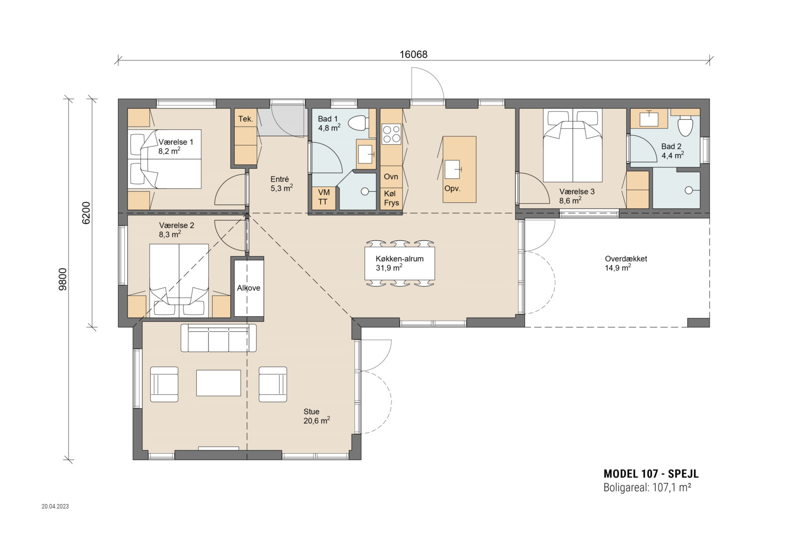
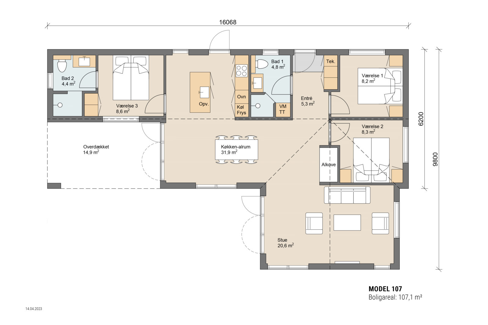
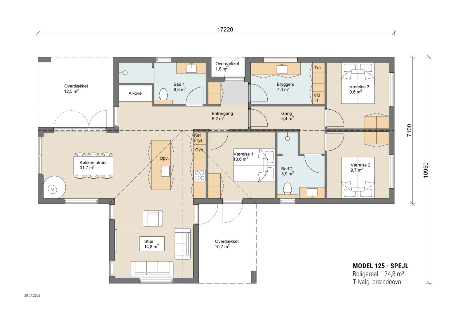
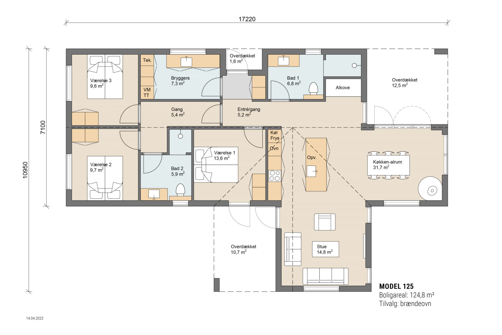
Vi har 17 planløsninger at vælge mellem, så vi har også en, der passer til dig - og har vi ikke, så tilretter vi gerne efter dine behov - alle tegninger kan selvfølgelig spejlvendes.
OBS. Der kan være mindre forskelle afhængig af serie - f.eks. har Classic udhæng og runde søjler, hvilket ikke fremgår af viste plantegninger.
3. Bliv inspireret til dit drømme design
Alle vores serier har nøje udvalgte standardmaterialer, men via vores tilvalgsprogram har du altid mulighed for at ændre både interiør og eksteriør, så du kan skabe dit helt eget sommerhus.
Skift profil- og farve på facadebeklædningen. Se huset med sprossede vinduer, foldedøre og ovenlysvinduer. Eller skift farve på tagrenderne. Indenfor kan du skifte køkken, loft, gulve, vægge og mange andre ting.
OBS! Du får den bedste brugeroplevelse på iPad eller computer.
Med Skanlux har du også mulighed for at få bygget dit helt eget sommerhus, som vores arkitekter har tegnet fra bunden indenfor vores principper.
Mange muligheder
Nogle af vores modeller har alkove, og de fleste har overdækket terrasse. Du har også mulighed for sauna og spa både ude og inde. Vi har endda modeller med aktivitetsrum - og drømmer du om pool, kan vi også hjælpe med det, eller måske er et af vores populære poolhuse så mere noget for dig.
Har du en stor familie eller mange gæster, kan vi bygge et anneks til dig eller tilføje en hems.
Sammen får vi skabt det sommerhus, der passer til dine behov både nu og i fremtiden - måske drømmer du om at bosætte dig i dit sommerhus på sigt eller bruge det til udlejning? Uanset hvad så er vi klar til at rådgive dig om de bedste løsninger til dine drømme.
Byg individuelt
Efter at have opfyldt kunders drømme i mere end 20 år ved vi, at det nogle gange kræver noget helt specielt. Det kan både være personlige ønsker, krav fra lokalplanen eller grundens udformning, der har indflydelse på det. Derfor har vores kunder mulighed for at få bygget deres helt eget sommerhus, som vores arkitekter har tegnet fra bunden indenfor vores principper. Vi har stor erfaring med det, og vi kan gøre drømmen opnåelig - også indenfor en fornuftig økonomisk ramme.
Følg @skanluxbyggefirma
Find inspiration til dit hjem blandt kundehistorier, unikke løsninger og inspirerende trends og tendenser.



































