Åbent hus
Kom indenfor i lækkert sommerhus
Galleri
Vi har lånt dette charmerende sommerhus af Mette og Mads. Vi glæder os til at vise dig rundt i personligt sommerhus fyldt med lækre materialevalg og vandbåren gulvvarme.
Husets funktionelle indretning
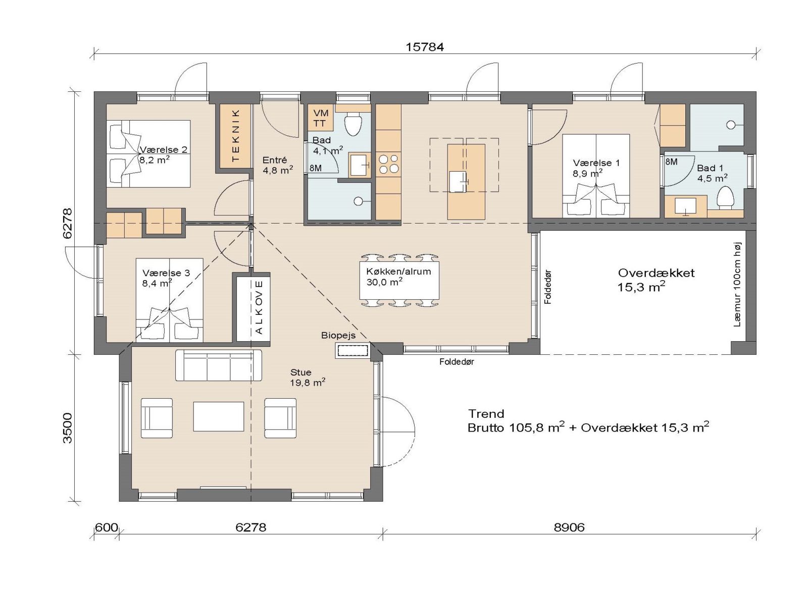
Det charmerende Trend sommerhus på 108 m² er indrettet, så der plads til gæster, børn eller børnebørn:
- Køkken/alrum med alkove og biopejs
- TV-stue
- Tre værelser - fordelt i to afdelinger
- To badeværelser
- Entré
- Overdækket terrasse
- Udendørsbruser
Med Trend sommerhus har du altid mulighed for at få integreret dine ønsker - eller få tegnet dit sommerhus fra blankt papir indenfor vores principper.
Husets flotte detaljer
Husets ejere har skabt et personligt sommerhus med standard- og tilvalgsløsninger:
- Lodret Superwood beklædning - sort
- Sorte sprossede vinduer udvendig, hvide indvendig
- Hvide træ lofter
- Sildebensparket gulv
- Eksklusive fliser på badværelser
- Luft/vand varmepumpe med gulvvarmesystem
- Biopejs
- Ovenlysvinduer fra Velux
- Tre foldedøre fra Lacuna
- Læhegn ved overdækning
Vi fik vores drømmehus - hvor hver dag føles som en ferie
Mette og Mads - husets ejere
Se billeder fra huset





















Der kan forekomme tilvalgsløsninger på billederne.
Ses vi til åbent hus?
Start drømmen med et besøg til dette charmerende sommerhus.
