Vores Trend-serie kombinerer stil og funktionalitet med eksklusive materialer og mange tilvalgsmuligheder – fra minimalistisk til romantisk badehotelstil! Udforsk serien og få inspiration til dit drømmehus!
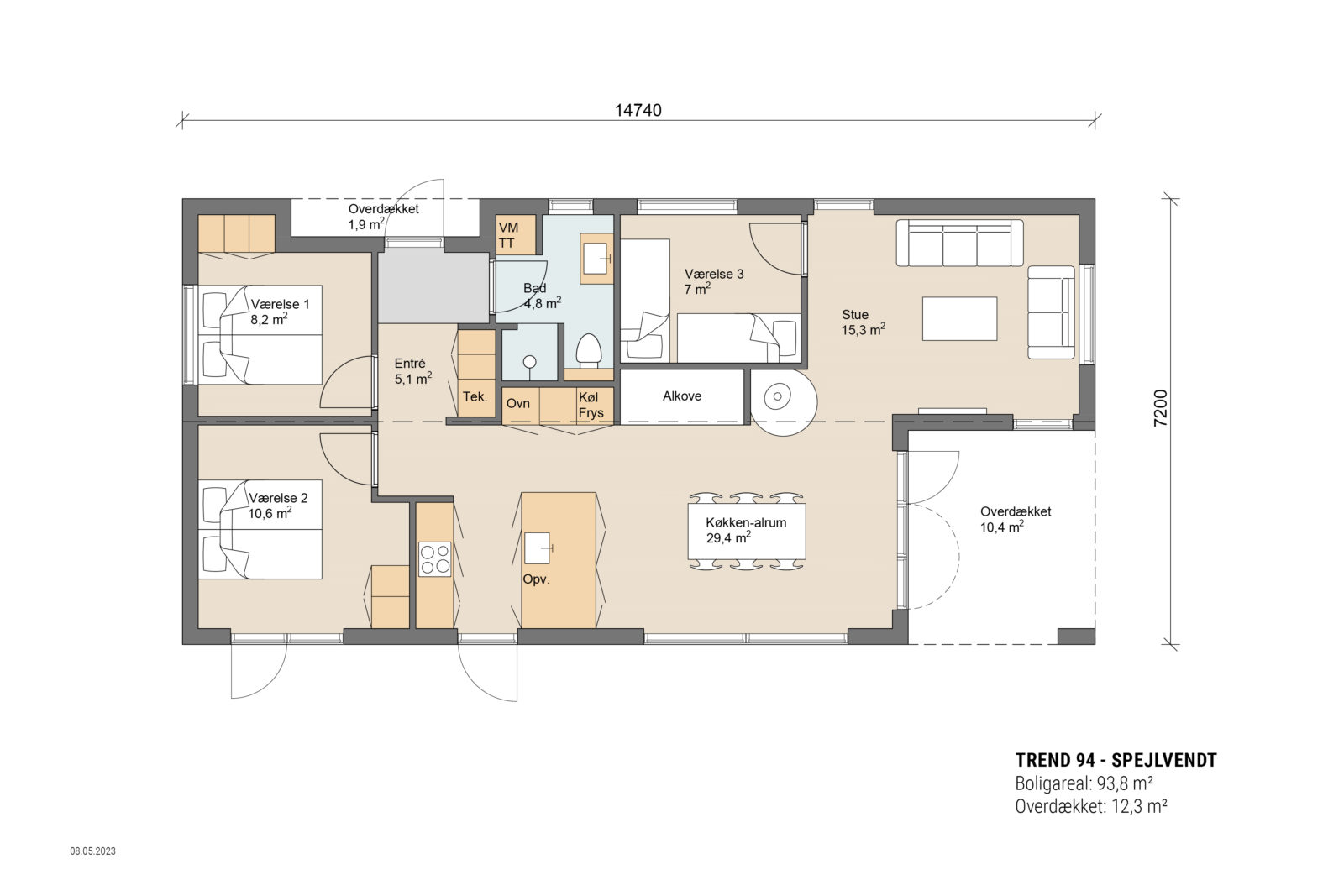
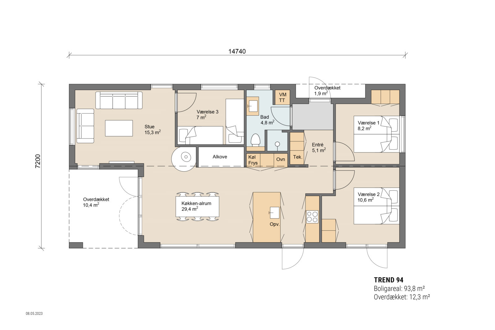
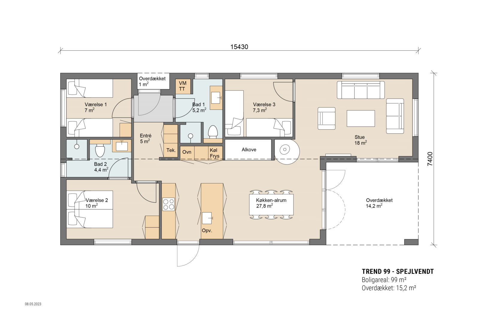
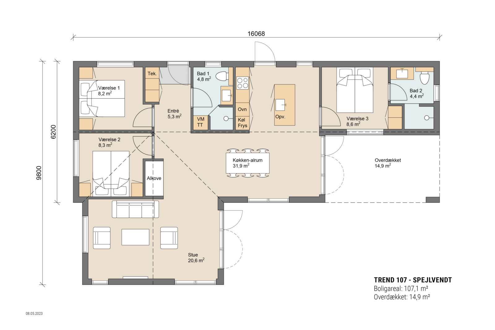
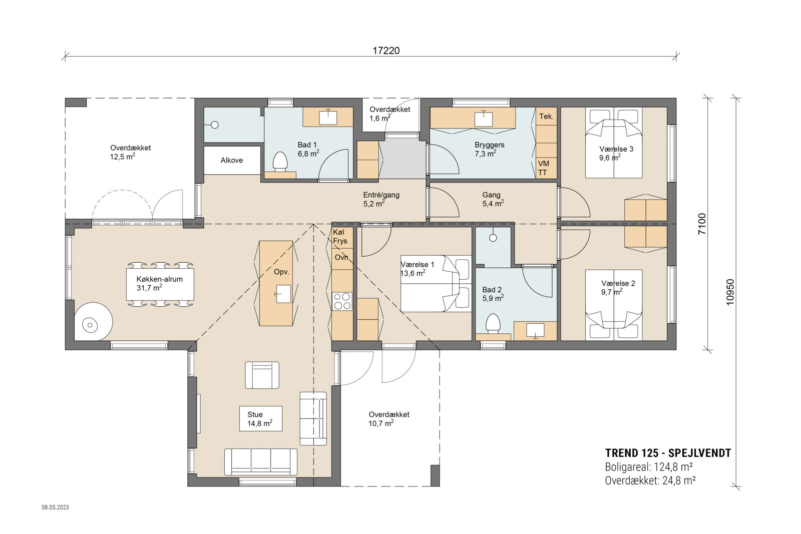
Plantegninger
Vi tilbyder mange standardmodeller, der passer på tværs af vores tre serier: Trend, Trend Basic og Classic. Når du har valgt den ønskede arkitektur, kan du vælge den model, der passer bedst til dig.
Alle modeller kan tilpasses efter dine ønsker, vi kan også tegne dit sommerhus fra bunden indenfor vores principper.
Klik på den model, du vil se. Du kan forstørre, spejlvende, printe og downloade tegningerne.
Galleri
Der kan forekomme tilvalgsløsninger på billederne.
Moderne design med plads til nostalgisk charme
Trend-serien er en nutidig sommerhusserie i stilrent design, skabt med omtanke for den moderne familie. Med standardmodeller fra 94 m² til 159 m² kombinerer serien årtiers erfaring med fokus på funktionalitet, eksklusive materialer og trivsel.
Med Trend får du et moderne og hyggeligt sommerhus med vandret Superwood facadebeklædning, 30 graders taghældning, arkitekttagrender og tagpap. Store vinduespartier og et rummeligt opholdsrum indbyder til samvær, mens den overdækkede terrasse giver mulighed for at nyde livet udendørs.
Lav din egen stil
Serien giver rig mulighed for at skabe dit personlige sommerhus. Tilpas det med populære tilvalg som lodret facadebeklædning, sprossede vinduer, ovenlysvinduer, foldedøre, sildebensparket og hvidmalede træprofiler på loft og vægge.
Alkove er standard i nogle modeller, men kan altid tilvælges. Hems og udebruser er også muligheder, og fra 120 m² er der mulighed for aktivitetsrum.
Skal vi tage en snak om dit drømmehus? Kontakt os på 70 21 45 21.
Gode priser og høj kvalitet
Vi har ingen skjulte omkostninger, startpakker eller andet, der kan skabe forvirring om økonomien. Vores konkurrencedygtige priser på nøglefærdige sommerhuse inkluderer f.eks. op til 15 m stikledning til kloak, el og vand samt en spulebrønd Ø315 mm. Derudover omfatter prisen landinspektør, nivellementsplan og afsætning af huset, fuldstøbt fundament med radonsikring, tagnedløb til faskiner (en kassette pr. 30 m² vandret tagflade), entrepriseforsikring uden selvrisiko, håndværkerrengøring og etablering af byggestrøm og byggevand (ekskl. forbrug).
Eksempler på vores gode priser:
- Trend 94 - kr. 2.070.888
- Trend 102 - kr. 2.422.640
- Trend 138 - kr. 2.847.670
- Trend 159 - kr. 3.267.286
Der tages forbehold for prisændringer.
Vi fandt det perfekte hus med Skanlux, og vi nyder det hver dag
Eksklusive materialer
Med Trend får du som standard et stilfuldt og arkitekttegnet sommerhus med fokus på kvalitet og æstetik:
- Facadebeklædning: Vandret beklædning fra Superwood (SW01 eller SW14) i sort, zink eller tjære heldækkende. De males efter opsætning
- Underbeklædning af udhæng: Superwood SW14 i zink heldækkende
- Tagkonstruktion: Enkel løsning med listetækning og elegante arkitekt-tagrender, der fremhæver den minimalistiske arkitektur.
- Vinduespartier: Store åbne Velfac træ/alu vinduer med 3-lags lavenergiglas for maksimal energieffektivitet.
- Interiørdetaljer: Flotte kip-løsninger med lofter i hvidmalet træ og hvide fibergipsvægge i køkken/alrum og badeværelse. I værelser og entré opføres væggene i hvidmalede profilbrædder.
- Køkken og badeværelse: Moderne køkken fra Svane Køkkenet, Ifö Modern væghængte toiletter og Unidrain linjeafløb.
- Energiløsninger: Vølund luft/vand varmepumpe med vandbåren gulvvarme og vandsparende armaturer fra hansgrohe.
Vores omfattende tilvalgsprogram giver dig mulighed for at skabe præcis den stil, du drømmer om.
Energi og bæredygtighed
Vores Trend-sommerhuse er energivenlige og langtidsholdbare, bygget med miljøvenlige materialer som FSC- eller PEFC-certificeret træ fra Superwood, som modtog EU's Miljøpris for sine bæredygtige processer. Vi bruger også Plastmo Stål Plus tagrender i zinklook, der ikke udleder zinkpartikler til grundvandet. Faskiner sikrer, at regnvand ledes til lavninger på grunden eller regnbede, og vi sorterer alt vores byggeaffald.
Trend-sommerhusene er energioptimeret med:
- Ekstra god isolering
- Vandbesparende armaturer fra hansgrohe
- Vedligeholdelsesvenlige Velfac 3-lags lavenergivinduer (træ/alu)
- Vølund luft/vand-varmepumpe med gulvvarme – opvarmer hus og brugsvand med SCOP-værdi 4–5
Du har desuden mulighed for at tilføje flere grønne tilvalg som sedumtag, solceller og el-ladestander.
Skal vi tjekke din byggegrund?
Skal du bygge et Skanlux sommerhus? Vi kommer gerne ud og tjekker din grund sammen med dig. Vores vigtigste opgave er at hjælpe med at finde den rigtige placering af huset, så vi kan optimere sollys, lysindfald og udsigt.
Et grundtjek tager ca. 1 time, hvor vi også vurderer skrånende byggefelter og adgangsveje.
Det er vigtigt at få foretaget en jordbundsundersøgelse, før du køber grunden, så du kender jordbundsforholdene og den økonomi, der følger med. Du kan booke denne undersøgelse via os.
Har du ikke fundet den rigtige byggegrund endnu? Vi har flere til salg – se mere her eller kontakt os på 70 21 45 21.
Udlej dit sommerhus
Ønsker du at udleje dit sommerhus, har vi stor ekspertise i at skabe huse, der holder til at blive brugt – og som giver bedst mulig lejeindtægt.
I huse fra 120 m² kan vi blandt anbefale vores populære aktivitetsrum med f.eks. billard, bordtennis og dart mm. som tilvalg.
Udlejning reducerer dine omkostninger som sommerhusejer, og det er en fordel for de fleste. Ved udlejning får du altid en skattefordel, da de første 50.200 kr. (2026 tal) af din lejeindtægt er skattefrie, hvis du lejer ud via bureau.
Du får også et skattefrit fradrag på 40%. Det vil sige, at du kan trække yderligere 40% af den resterende lejeindtægt. Resten beskattes som kapitalindkomst.
Aktivitet og leg
Fra 120 m² anbefaler vi, at der indrettes et aktivitetsrum. Så kan man hygge sig i al slags vejr – hele året rundt.
Aktivitetsrummet udstyres for det meste med dart, bordtennis, billard, PlayStation og nogle gange også en bar. Ofte etableres der hems i forbindelse med aktivitetsrummet.
Ved udlejning er efterspørgslen på sommerhuse med aktivitetsrum høj, da det forlænger sæsonen. Vores erfaring viser, at man i huse med velindrettede aktivitetsrum kan øge udlejningen med op til 40 %.
Bestil prisliste
I vores prisliste får du ikke bare svar på priser, du får også en materiale oversigt. Bestil den nu og modtag den om få minutter. Prislisten indholder priser på alle vores sommerhusserier.
MedByg
Er du håndværker eller dygtig ”gør-det-selv-mand” og med tid til aktivt at deltage i færdiggørelsen af byggeriet, kan vores sommerhuse leveres som MedByg - altså et "byg selv sommerhus".
Med Skanlux Medbyg leverer vi et komplet råhus inkl. fundament, kloak og nedgravning af stikledninger. Bygherre sørger for den indvendige færdiggørelse inkl. vvs, el, klinker og malerentreprise.
Materialer
Vi bruger de bedste standardmaterialer f.eks. får du Velfac 3-lags træ/træ vinduer, Superwood facadebeklædning, inventar fra Svane Køkkenet - se mere nedenfor!
Udvendige standarder
- Tagkonstruktion med 30 graders taghældning, listedækning og sort tagpap
- 290 mm isolering i tag
- Stål Plus tagrender i original zink look, uden udvaskning af zink til grundvandet
- Superwood facadebeklædning - SW01 eller SW14 - vandret 21x145 mm profil i standardfarverne: sort, zink og tjære heldækkende. Males efter opsætning
- Superwood underbeklædning af alle overdækkede arealer - SW14 zink heldækkende
- Energivenlige vinduer fra Velfac med 3 lags træ/alu vinduer
- I de fleste modeller er der overdækket terrasse*
*Se plantegninger for nærmere information.
Indvendige standarder
- Vølund luft/vand varmepumpe med vandbåren gulvvarme
- 300 mm isolering i gulv
- Pergo laminatgulve i stue, køkken/alrum og værelser
- Klinker i badeværelse i størrelse 30x60 cm
- Loft i kip i mange vinkler - hvidmalede profilbrædder
- Hvide glatte fibergipsvægge med filt i køkken/alrum, stue og badeværelser
- Hvidmalede træprofiler i entré og værelser
- Indvendig sidehøjde på ca. 220 cm
- Unidrain linjeafløb i brusekabinerne
- Vandbesparende hansgrohe armaturer
- Ifö Modern væghængte toiletter med skjult cisterne og soft close toiletsæde
- Hårde hvidevarer pakke AEG
- Moderne bad- og køkkenløsninger fra Svane Køkkenet
Vi tror på fremtidssikrede huse, bygget af kvalitetsmaterialer som holder, derfor kan du forvente det, når du bygger med os.
Populære tilvalg
- Vandret facadebeklædning fra Superwood
- Gipslofter
- Alkove - standard i nogle modeller
- Hems
- Udtag til udendørsbruser
- Brændeovn
- Ovenlysvinduer med regnsensor
- Spa - standard i nogle modeller
- Ude spa og sauna
- Sten- eller træterrasse
- Anneks
En stærk træfacade
Som standard til dit nye Trend sommerhus får du altid en vandret facadebeklædning inkl. underbeklædning af alle udhæng.
Til begge dele anvender vi altid Superwood. Gennemimprægnerede og miljøvenlige FSC-certificeret brædder af gran, som er beskyttet helt ind i kernen mod råd og svamp uden brug af tungmetaller og opløsningsmidler.
Med Superwood får du et smukt og bæredygtig resultat, som også har en gennemtestet og dokumenteret lang holdbarhed.
Det er grundet alle disse gode egenskaber, at vi har valgt Superwood som standard til alle vores Trend sommerhuse.
Som en ekstra design detalje kan du tilvælge facadebeklædningen i lodret.
MINIMAL VEDLIGEHOLDELSE
Den udendørs træbeklædning fra Superwood er gennemimprægneret og miljøvenlig. Udviklet til holdbare facader.
Naturtro og slidsstærke laminat gulve, klar til mange timers brug.
Materialerne gør forskellen
Trend er eksklusive træhuse både ude og inde. Overalt er der fokus på lækre detaljer, materialer og løsninger.
Det betyder, at der som standard er brugt den bedste kvalitet i alle materialer og løsninger, både ude og inde. Derudover kan du vælge blandt mange lækre tilvalg.
Dit Trend hus bygges på grunden uden præfabrikerede løsninger. Det betyder, at du får et hus, som er tilpasset grunden, og udnytter omgivelserne til fulde. Det sikrer dig fleksibilitet og kvalitet helt ned til mindste detalje samt flotte finesser, der kun er muligt hvis dit hus bygges på stedet.
Energi
Dit Trend sommerhus bygges med fokus på et lavt energiforbrug. Derfor har Trend som standard 300 mm isolering i gulv og 290 mm i tag, vandbesparende hansgrohe armaturer, energivenlig luft/vand varmepumpe med vandbåren gulvvarme og 3-lags Velfac lavenergivinduer.
Energivenlig varme
Med Trend får du som standard en energivenlig luft-til-vand-varmepumpe med vandbåren gulvvarme – en støjsvag og driftssikker løsning, der giver høj komfort og lune gulve året rundt. Det er desuden en fordel, hvis du senere ønsker at bosætte dig i sommerhuset.
Effektiv og økonomisk opvarmning med høj komfort
Varmepumpen genanvender varmen i udeluften til at opvarme både huset og brugsvandet og leverer op til 5 gange så meget varmeenergi, som den bruger i el (SCOP 4–5). For et sommerhus på 100 m² ligger de årlige eludgifter typisk på 4.000–5.000 kr., inklusiv opvarmning af brugsvand, og ved helårsbrug omkring 7.000–8.000 kr.* En løsning, der både er miljøvenlig, økonomisk og giver stabil drift år efter år.
Nogle Trend-huse kan desuden opgraderes til BR18-kravene for helårsbolig.
*Beregninger fra 2024.
Energi standarder
I dit Trend sommerhus har vi, som standard valgt nogle energivenlige løsninger til dig:
- Vandbesparende hansgrohe armaturer
- Velfac træ/træ vinduer med 3 lags lavenergiglas og varmekant
- Vølund luft/vand-varmepumpe med gulvvarme – opvarmer hus og brugsvand med SCOP-værdi 4–5
- God isolering
Bæredygtige muligheder
Du kan tilvælge flere bæredygtige løsninger til dit sommerhus. Vi hjælper dig f.eks. gerne med:
- Sedumtag - grønt tag som absoberer regnvand
- Solcelle paneler på taget
- Oplader til el-bil
Kontakt os på 70 21 45 21 og hør nærmere omkring ovenstående.










































































































